Bremen:
Mobilhaus Ulrike LUX
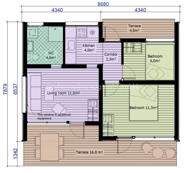
Objekt-Nr.: 5010




























Preis:
184.900 €
Wohnfläche ca.:
48 m²
Zimmeranzahl:
4
Das Flaggschiffmodell: Das noch nie dagewesene Design beeindruckt vom ersten Moment an. Die moderne Fassade in Kombination mit einem schrägen Fenster, das das Dach durchschneidet, erhebt dieses Modell an die Spitze der innovativen Architektur. Ulrike LUX bedeutet Luxus und Prestige. Ein Modell, das über dem Durchschnitt liegt und eine Quelle des Stolzes ist.
Grundsätzlich haben alle Tiny Häuser ihren Ursprung als Mobilheim. Demnach werden wir zunächst die Mobilheim-Standard-Ausstattung beschreiben und diese dann durch unsere Tiny Haus Anpassung ergänzen:
Wärmedämmung für den Sommer (Rockwool 10 cm im Boden, 5 cm in den Wänden und 10 cm im Dach).…
***Weiße Kehrradton-Fassade *** Feuerverzinktes Chassis *** Doppelt verglaste Fenster *** 1 Außenbeleuchtung ***Hausschild ***PVC-Bodenbelag ***Vorhangstangen an den Fenstern *** Vorhänge ***Raffrollos ***Einrichtungsgegenstände je nach Projekt *** Polstermöbel ***große Kühl-Gefrierkombination *** Gas- oder Induktionskochherd ***Backofen mit Heißluft ***Dunstabzug mit Ventilator und Kohlefilter (über dem Herd) ***ein Spülbecken mit Spültischarmatur *** Kopfteil (bei den Betten) aus Möbelplatte oder gepolstert ***Matratze aus Schaumstoff *** Energiesparende LED-Beleuchtung ***TV-Anschluss ***integrierte Badmöbel nach Projekt *** Dusche *** Waschbecken aus Keramik *** WC aus Keramik *** Sanitärbatterie am Waschbecken ***elektrischer Handventilator.
Von UNS ausgewählte Extras für die Tiny Häuser:
Zusätzliche Isolierung, um eine Zulassung als “ortsveränderliches Wohngebäude zu erfüllen”, bedeutet, die Wände, Decken und der Boden wurden um 160 mm Isolierung erweitert und alle Außenfenster und Türen haben eine 3-Scheiben-Verglasung.
Im Preis enthalten ist die Lieferung innerhalb Deutschlands mit einem Tieflader und die Montage des Hauses vor Ort (ohne Gründungsarbeiten)
Das Haus wird für den Transport in einer Folie verpackt, um es gegen Schmutz und Schäden zu sichern
Das Kanalrohr wurde bauseits angeschlossen
Die Fenster sind 2-farbig. Innen weiß, außen nach Wunsch.
Das Haus hat elektrische Konvektor-Heizkörper in jedem Raum und einen 80 l Warmwasserboiler .
Eine TV-Halterung wird sicher installiert
Wir haben die LED-Beleuchtung im Innenraum verdoppelt
Wir haben an jeder Hausseite 2 LED-Außenleuchten eingerechnet
Wir haben zusätzlich 2 Außensteckdosen montieren lassen
In den Schlafräumen haben wir eine indirekte LED-Beleuchtung in den Bett-Kopfteilen eingebaut.
Im Bad und WC wurden LED-Spiegel eingebaut
Die Küche hat eine indirekte LED Zusatzbeleuchtung bekommen
Das Haus hat eine 380 V Stromversorgung
ein digitaler Stromzähler wurde eingebaut
Das Haus wurde für eine Photovoltaik-Installation vorbereitet
In der Küche wurde ein Wasch-Trockner eingebaut
Es wurde ein 45 cm breiter Geschirrspüler eingebaut
Alle Räume haben einen Brandmelder
Alle Fenster- und Außentüren haben Moskitoschutz-Netze bekommen.
Haustyp: Bungalow
Etagenanzahl: 1
Provisionspflichtig: nein
Küche: Einbauküche
Bad: Dusche
Anzahl Schlafzimmer: 3
Anzahl Badezimmer: 1
Barrierefrei: ja
Seniorengerecht: ja
Keller: nein
Möbliert: ja
Qualität der Ausstattung: normal
Baujahr: 2025
Bauphase: Haus in Planung (projektiert)
Bodenbelag: Linoleum
Zustand: Erstbezug
Energieklasse: A+
Heizung: Radiatoren
Befeuerungsart: Elektro
Energietyp: KFW55
Energieausweistyp: Energieausweis liegt zur Besichtigung vor
Die von uns gemachten Informationen beruhen auf Angaben des Verkäufers bzw. der Verkäuferin. Für die Richtigkeit und Vollständigkeit der Angaben kann keine Gewähr bzw. Haftung übernommen werden. Ein Zwischenverkauf und Irrtümer sind vorbehalten.
Wir weisen auf unsere Allgemeinen Geschäftsbedingungen hin. Durch weitere Inanspruchnahme unserer Leistungen erklären Sie die Kenntnis und Ihr Einverständnis.
Das könnte Ihnen auch gefallen
Mobilhaus Kerstin
Lady Amalia - Ein Tiny Haus für Genießer
Modulhaus Melina

tinyHome|immoGreat GmbH
Herr Nico Suchopar
Lohweg 28 A
28790 Schwanewede
Mobil: +49 176 61525287





























